変わらない安心感、進化する暮らしやすさ。
昭島で見つける理想の住まい。
昭島市南エリアは駅前のにぎわいと、少し離れた住宅街の静けさが美しく調和するバランスのとれた街。
周辺には買い物施設や飲食店も多く、日々の暮らしは便利そのもの。
昭島から新宿へは直通で約40分。
都市との心地よい距離感を保ちながら、家族の時間をゆったりと過ごすことができる上質な住環境です。
JR青梅線「昭島」駅 徒歩10分 | JR青梅線「中神」駅 徒歩13分

| 様々なプランが叶うゆとりのある整形地。 |
大きな通りを一歩入った立地なので閑静で落ち着いた住環境です。 |
| - 1号地 - |
| 南より | 正面より |
| 北西より | 西側より |
| 南西より | 北側道路より |
| - 物件種別 - |
| 敷地面積 | 販売価格 | |
|---|---|---|
| 1号地 | 65.02㎡(19.66坪)(他セットバック部分約8.57㎡) | 1,980万円 |
| ※掲載の区画図は図面をもとに作成したもので、実際の状況とは異なる場合がございます。 |

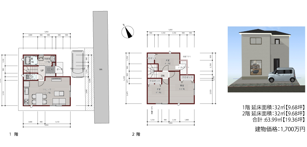
- 区画図 - ![]() -間取り参考プラン- ![]() |
| ※間取り図は設計図をもとに作成しており、実際とは若干異なる場合がございます。 ※建物および設備の仕様は、詳細設計や施工段階で変更となる場合がございます。 ※図面と現況に相違がある場合は、現況を優先とさせていただきます。 |

| ファミリー層に人気の理由は、都心へのアクセスの良さだけでなく、 日常に便利なお店がコンパクトに集約されていること、地下深層水のおいしさ、 緑の多い環境にあります。 |
| 当物件が位置する南側エリアはチェーン店が豊富で便利な一方で、 昔ながらのおせんべい屋さんや鮮魚店などもあり、どこか懐かしい雰囲気。 新旧が共存する魅力あふれる街並みです。 |
![]() | ![]() | ![]() |
| JR青梅線「昭島」駅 徒歩10分(約800m) | JR青梅線「中神」駅 徒歩12分(約950m) | 昭島市立光華小学校 徒歩4分(約250m) |
![]() | ![]() | ![]() |
| 昭島市立清泉中学校 徒歩6分(約450m) | 上ノ原保育園 徒歩3分(約240m) | あきみ保育園 徒歩7分(約550m) |
![]() | ![]() | ![]() |
| 恵泉幼稚園 徒歩9分(約650m) | モリタウン 徒歩13分(約1,000m) | ビッグ・エー昭島朝日町店 徒歩5分(約350m) |
![]() | ![]() | |
| ウエルシア昭島朝日町店 徒歩5分(約400m) | 業務スーパー昭島店 徒歩7分(約500m) | 珈琲所コメダ珈琲店昭島店 徒歩7分(約500m) |
| 昭島市民図書館(アキシマエンシス) 徒歩9分(約700m) | アウトドアヴィレッジ 徒歩20分(約1,600m) | 手焼きせんべい 武蔵屋 徒歩1分(約82m) |
| 築地 丸義(鮮魚店) 徒歩12分(約900m) | 昭島市立つつじが丘公園 徒歩10分(約800m) | 朝日町いこい公園 徒歩10分(約750m) |
| 太陽こども病院 徒歩12分(約950m) | 富士診療所 徒歩8分(約600m) | わたなべ耳鼻咽喉科 徒歩4分(約290m) |
| ※距離は地図上の概測によるもので、徒歩は1分80mで換算しています。 ※周辺環境に関する情報は掲載時点のものであり、将来的に変更となる場合があります。 |
| アクセスマップ |
![]() |

| 所在 | 東京都昭島市昭和町3-19-9 |
|---|---|
| 交通 | JR青梅線『昭島』駅 徒歩10分 / JR青梅線「中神」駅 徒歩13分 |
| 土地面積 | 65.02㎡【19.66坪】(他セットバック部分約8.57㎡) |
| 地目 | 宅地 |
| 都市計画 | 市街化区域 |
| 用途地域 | 第一種低層住居専用地域 |
| 建ぺい率 | 50% |
| 容積率 | 100% |
| 防火指定 | 準防火地域 |
| 法令上の制限 | 第一種高度地区 |
| 他の法令上の制限 | 航空法・景観法・盛土規制法 |
| 接道状況 | 東側幅員約1.8m(市道・法第42条2項道路) |
| セットバック | 済(セットバック部分約8.57㎡) |
| 権利 | 所有権 |
| 設備 | 東京電力・公営水道・本下水・プロパンガス |
| 現況 | 更地 |
| 引渡し時期 | 相談 |
| 取引態様 | 売主 ※ご契約の際は、仲介会社が媒介する場合があります。その場合仲介手数料が発生しますのでご了承ください。 |
| 情報公開日 | 2025年7月31日 |
| 前回更新日 | 2025年11月28日 |
| 次回更新予定日 | 2025年12月下旬 |
| 取引条件の有効期限 | 2025年12月31日 |
| ※図面と現況に差異がある場合は、現況を優先とさせていただきます。 ※広告制作中に売却済となった場合は、何卒ご容赦ください。 |
© 2025 扶桑管理サービス株式会社